★
1号地
価格
1680万円
- 土地面積
- 公簿 233.51㎡ (70.63 坪)
- 坪単価
- 23.78万円
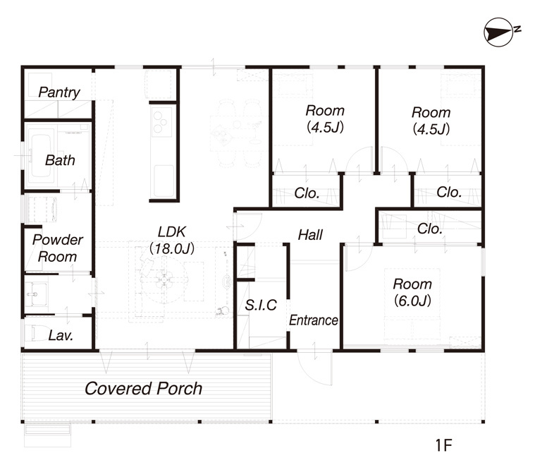
おすすめ建物セットプラン
建物プラン例
※画像をクリックすると拡大画像が表示されます
POINT
駅まで徒歩10 分圏内! 下郡バイパスまで車で1 分と、交通も便利な立地。
物件情報
- 所在地
- 大分市大字津守74-1
- 価格
- 1680万円
- 交通
交通の利便 - [電車] JR豊肥本線 滝尾駅 徒歩
9分
[バス] 大分自動車学校入口 徒歩 3分
大分自動車学校入口バス停徒歩3 分
- 土地面積
- 233.51㎡(70.63坪)
- 私道負担面積
- 84.22㎡(共有持分:1/2)
- 開発面積
- --
- 許可番号
- --
- 坪単価
- 23.78万円
- 都市計画
- 市街化区域
- 共有施設等の負担金
- --
- 引渡日
- 【相談】
- 工事完了予定
- 2025年07月
- 地勢
- --
- 総区画数
- 2
- 販売区画数
- 1
- 地目
- 宅地
- 用途地域
- 第1種中高層住居専用
- 建ぺい率
- 60%
- 容積率
- 200%
- 土地権利
- 所有権
- 取引態様
- 売主
- 現況
- 更地
- セットバック
- --
- ランニングコスト
- ※備考欄のご確認もお願いします。
- その他一時金
- --
- 小学校
- 森岡小学校
- 小学校までの距離
- 1300~1320m
- 中学校
- 滝尾中学校
- 中学校までの距離
- 1600~1620m
- 接道状況
(道路の幅員)
- 借地の旨
- --
- 建築条件付き
- あり
※建築条件付宅地:土地契約後、3ヶ月以内に株式会社ベツダイと建築請負契約が成立しない場合は、土地契約は無効となり手付金等は全額買主へ返還いたします。
- 特徴設備
- プロパンガス、電気、上水道、浄化槽、整形地
- 備考
- --
- その他制限事項
- --
- 情報公開日
- 2025年02月24日
- 情報更新日
- 2026年04月28日
- 次回更新予定日
- 2026年05月11日
- 取引条件の有効期限
- 2026年05月11日
環境情報

大分市立森岡小学校(徒歩17分/約1300~1320m)

大分市立滝尾中学校(徒歩21分/約1600~1620m)

滝尾駅 (徒歩9分/約650m~670m)

ファミリーマート 大分津守店 (徒歩6分/約450m~470m)

わだ内科・胃と腸クリニック (徒歩5分/約350m~370m)


最寄りの学校
- 小学校
- 森岡小学校
- 小学校までの距離
- 1300~1320m
- 中学校
- 滝尾中学校
- 中学校までの距離
- 1600~1620m
地図
見学までの流れ
お問い合わせ

下記フォームより、土地のご見学やご相談をお気軽にお問い合わせください。
折り返し連絡をいたしますので、お客様の連絡先・相談内容をご記入ください。担当者より連絡

担当者より2~3営業日以内にメールまたはお電話でご連絡いたします。 その際、詳細についてお伺いさせていただきます。
土地のご見学

実際の土地の広さや立地、周辺の様子を体感していただけます。












駅まで徒歩10分圏内!
内科やコンビニも徒歩5分・6分と、車が無い時も安心の物件です。
【グランヒル津守 2区画 分譲地】
1号地:1680万円 233.51㎡
2号地:成約