私たちに、ちょうどいい家。CRAFT ZERO-FREE STYLE-

もっと自由に、
自分スタイル。
自分スタイル。
UN-DESIGNな家を自分たちの"好き"で、
暮らしをデザインする。
デザインやスタイルにとらわれずに、あえてシンプルに…
"好き"なライフスタイルで、
お気に入りの暮らしをデザインする家。
注文住宅でも、建売住宅でもない。
全く新しい「セミオーダーの規格住宅」が誕生。
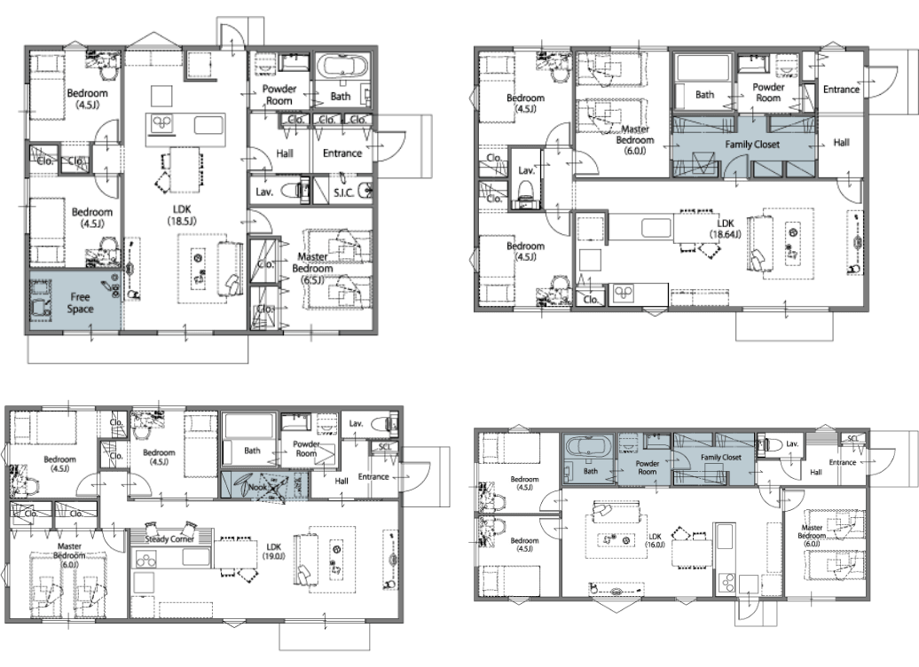
住みたいエリアを探して、100パターンの間取りから選ぶ。
そして自由に「こだわり」をカスタマイズする家づくり。
建売住宅のコスパはそのままに、
お気に入りの暮らしをデザインする家。
そんな時代のニーズにフィットする。
新しい住まいの選択肢です。
暮らしをデザインする。
デザインやスタイルにとらわれずに、あえてシンプルに…
"好き"なライフスタイルで、
お気に入りの暮らしをデザインする家。
注文住宅でも、建売住宅でもない。
全く新しい「セミオーダーの規格住宅」が誕生。
住みたいエリアを探して、100パターンの間取りから選ぶ。
そして自由に「こだわり」をカスタマイズする家づくり。
建売住宅のコスパはそのままに、
お気に入りの暮らしをデザインする家。
そんな時代のニーズにフィットする。
新しい住まいの選択肢です。

Freestyle and Smart, Strong.強いベースに、
自由を重ねる。
GX仕様と2×6構造がつくる安心の土台に、100プランの間取りと、6つのインテリアテイストを自由にレイヤーしていく。
暮らしのカタチも、空間の雰囲気も、自分たちらしく仕上げられる。
性能も、デザインも、心地よさも。すべてが"ちょうどいい"フリースタイルの家です。
- Price
すべてを兼ね備えて、
ワンプライス。選べるプランとインテリアまで、暮らしに必要な価値をすべてひとつに。わかりやすく、納得できる価格でご提案します。
- Structure & Performance
GX仕様が支える、
揺るぎない安心。高断熱・高気密のGX標準仕様に。耐震・耐久性に優れた構造を採用。毎日の快適さと、もしもの安心を支える、高性能な住宅仕様です。
災害に強い、ずっと安心の家。
2×6工法による強固な構造で、地震や自然災害に備える高耐震の住まい。
SEE EXAMPLE
見えない部分まで家族を守ります。
災害に強い、ずっと安心の家。
家族の健康を守る、高断熱の安心な住まい。
SEE EXAMPLE
室内の温度差を少なく保ち、ヒートショックなどの健康リスクを軽減。毎日の暮らしと家族の健康を守ります。
- Equipment
必要なものすべてを、上質に。
暮らしに必要な設備をしっかり標準でご用意。入居したその日から、心地よく暮らせるクオリティです。


Let's build My home.さぁ、フリースタイルで、
マイホームをつくろう。

- STEP 01
セミオーダー住宅を楽しむ100プランの中から、
プランをセレクト。
"選ぶ楽しさ"から、
家づくりがはじまります。FREESTYLE ZEROは、100通りのベースプランを用意しています。広さ、間取り、動線、部屋数…家族の暮らしに合わせて、まずは"私たちにちょうどいい形"を見つけるステップです。セミオーダーだからこそ、スムーズで楽しくプランを選べます。 - STEP 02
スタイルを選ぶ外観は3タイプ、
インテリアは4テイスト。
"好き"で選ぶだけで、
暮らしの世界観が決まります。エクステリアは、三角屋根・四角・片流れの3タイプから選べます。インテリアは、北欧・ナチュラルモダン・アンティーク・ホテルライクの4テイスト。外観と室内の組み合わせで、暮らしのスタイルを自分らしく整えるステップです。



- STEP 03
家具を選ぶ好きなテイストに合わせて、
家具ブランドもセレクト。5つのブランドから、お好みに合わせて家具を自由に選べます。空間の雰囲気を左右する家具も"好き"で選べるから、ライフスタイルに自然となじむコーディネートが可能です。入居後すぐに自分たちらしい暮らしが完成します。unico

素材のぬくもりと、
新しい感性を楽しむインテリアACME Furniture

ヴィンテージ感と現代性が調和する、
こだわりのディティールJOURNAL STANDARD
FURNITURE
使い込むほど味わいが増す素材選びや、
ラフさと上質さを併せ持つデザインCRASH GATE

いつの時代にも愛される、
ヴィンテージスタイル空間へACTUS

心地よさを育む、
上質なライフスタイル
- STEP 04
+F U N でカスタマイズ(参考プラン)さらに"好き"を重ねる、
自由なカスタマイズ。暮らしに合わせて"もっと楽しく・もっと便利に"カスタマイズできます。家づくりの最後にあなたらしいこだわりをプラスするステップです。+F U Nの考え方

OPTIONOITA CRAFTベツダイオリジナルブランド
" O n l y O n e の暮らし"を
住まいづくりで実現。ライフスタイルに合わせて、動線・心地よさ・空間の調和まで丁寧に設計し、"あなたらしさ"を反映した家具や設備をご提案します。

CRAFT ZERO-FREE STYLE-をもっと知りたい
CRAFT ZEROカタログ

"好き"なライフスタイルで、
資料請求はこちら
お気に入りの暮らしをデザインする家。
FREESTYLE ZEROの魅力が満載です。お問い合わせ

CRAFT ZEROについて、
相談・予約はこちら
メールフォームやお電話での
お問い合わせも受け付けております。
TEL.0120-252-737
[受付]9:00-18:00(火曜・水曜定休)


























